Longère 323,28 m2 (avec dépendances louées : T3 & T4)

Longère 323,28 m2 (avec dépendances louées : T3 & T4)

452 000 €
Honoraires agence à charge vendeur

Bien à multiples facettes, composé comme suit :

Situé à Rubempré à 17 km d'Amiens

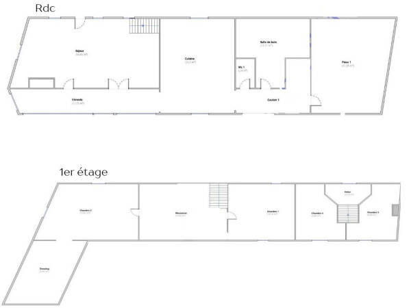
Une longère principale de 212,25 m2 en DPE C
Avec poutres apparentes offrant une pièce de vie de 57 m2 avec son insert à bois et une hauteur sous plafond de 2,93 m (très rare pour ce type de bien), une cuisine aménagée et équipée semi-ouverte de 25,50 m2, une véranda judicieusement conçue pour les économies d'énergie avec un accès cave, un petit couloir vous mène au wc séparé, suivi d'une salle de bain avec baignoire ronde, douche et deux meubles vasques de 17,11 m2, une buanderie de 21,89 m2 avec insert bois qui pourrait devenir une magnifique chambre parentale en rdc donnant sur un jardin d'hiver, un première escalier conduit sur un palier desservant deux chambres mansardées pleines de charme, un autre escalier permet d'accéder à deux autres chambres aux beaux volumes dont une avec un espace rangement (ou cabane pour vos jeunes enfants) ainsi qu'une grande pièce palière actuellement utilisée en bureau petit salon.

Sur les extérieurs privatifs sans vis à vis, un espace barbecue en brique, une piscine avec douche et meuble vasque sous abri coulissant, une première dépendance avec cave, une deuxième accueillant un atelier d'environ 60 m2 ouvrant sur le potager.

Des panneaux photovoltaïques génèrent des revenus de 1 475 euros par an (le contrat est encore actif 5 années).

Vous bénéficiez également de revenus locatifs (111,03 m2)

1 T3 de 42.74 m2 carrez loué 360 euros Charges comprises bail un an renouvelable en février
1 T4 de 68.29 m2 carrez loué 600 euros Charges comprises bail un an renouvelable en octobre

Avec compteurs électriques individuels
Chauffage électrique et productions eau chaude par ballons 100 et 200 litres, vmc simple flux
DPE D - Diagnostics sans anomalies !
Situés sur une autre dépendance ni accés ni vis à vis avec la longère principale

Soit en tout, un revenu mensuel de 1 083 euros !

Une belle opportunité s'offre à vous, saisissez là !!!

Photo de
Photo de
Photo de
Photo de
Photo de
Photo de
Photo de
Photo de
Photo de
Photo de
Photo de
Photo de
Photo de
Photo de
Photo de
Photo de

Caractéristiques

ville : Amiens
région : Hauts-de-France
Mandat : 13670
Type : Maison
surface : 323.28 m²
terrain : 698 m²
pièces : 6
chambres : 4
Chauffage : Individuel Fuel Radiateur
terrasse : 1
année de construction :1949
Salle de douche : 1
Toilettes : 1
Taxe foncière : 1 680 €
Piscine : oui

Diagnostic énergétique

Diagnostic de performance énergétique

A - Logement très performant
G - Logement extrêmement consommateur d'énergie

A B C D E F G

148 kWhEP/m²/an

Indice d'émission de gaz à effet de serre

A - Peu d'émission de CO₂
G - Emissions de CO₂ très importantes

A B C D E F G
26 kg éq CO₂/m²/an

Cabinet Fontaine Amiens
0375501443
Les informations sur les risques auxquels ce bien est exposé sont disponibles sur le site Géorisques https://www.georisques.gouv.fr.